Котел тривалого горіння Котлант Макотен Mix
Котел з варочною плитою Котлант Макотен Mix
Макотен Mix це серія твердопаливних котлів з варочною поверхнею, які поєднують в собі функцію обігріву будинку та приготування їжі.
Асортимент моделей Макотен Mix:
- КТ-12П для площі до 120 м2, мають одну варочну плиту;
- КТ-15П для площі до 150 м2, мають одну варочну плиту;
- КТ-18П для площі до 180 м2, мають дві варочні плити;
Розроблений для роботи в системах опалення з тиском до 2 бар.
Загальні переваги котлів Макотен Mix:
- Чавунна варочна поверхня;
- Високий показник КПД –до 82% в залежності від палива;
- Довга тривалість горіння 5-7 годин на одній закладці;
- Водонаповнені безшовні колосники;
- Зручний у використані та чистці;
Конструктивні особливості котлів Макотен Mix:
Теплообмінник виготовлений зі спеціальної котлової сталі, товщина якої 4 мм. Зверху теплообмінника знаходиться товстий шар теплоїзоляцїї. Обшивка котла пофарбована спеціальною порошковою фарбовою, що з часом не облазить та не здувається навіть при інтенсивній експлуатації котла.
Дверцята в котлі мають габарити достатньо великі для зручного завантаження палива та чистки під колосникової зони. А для швидкого завантаження сипучих видів палива виробник зробив завантажувальні дверцята під нахилом.
Важливо, що дверцята оснащені гарною теплоізоляцією, спеціальними тепловими екранами та мають можливість регулювання щільності.
Колосники представлені цільнотянутими трубами, і водо наповненими. Це забезпечую високий рівень КПД котла, та дає можливість суттєво заощадити на паливі.
Ззаду котла, на виході димоходу, вмонтований шибер, який дає змогу регулювати тягу.
| Технічні характеристики: | ||||
| Модель котла | КТ-12П | КТ-15П | КТ-18П | |
| Потужність номінальна, ±10% | кВт | 12 | 15 | 18 |
| Опалювальна площа, до * | м² | 120 | 150 | 180 |
| Об'єм камери згорання | дм³ | 42 | 50 | 70 |
| Довжнина камери згорання | мм | 350 | 460 | 610 |
| Розмір завантажувального вікна | мм | 312х200 | 312х200 | 312х200 |
| ККД | % | 70-79 | 70-79 | 70-79 |
| Водяна ємність котла | л | 31 | 40 | 52 |
| Робочий тиск | бар | 1,5 | 1,5 | 1,5 |
| Макс. температура | °C | 90 | 90 | 90 |
| Мін. робоча температура | °C | 58 | 58 | 58 |
| Температура продуктів згорання | °C | 100-240 | 100-240 | 100-240 |
| Висота димоходу | м | 5 | 5 | 5 |
| Діаметр димоходу | мм | 130 | 160 | 160 |
| Висота від полу до центру димоходу | мм | 745 | 735 | 745 |
| Підключення котла до системи опалення | Ду | 40 | 40 | 40 |
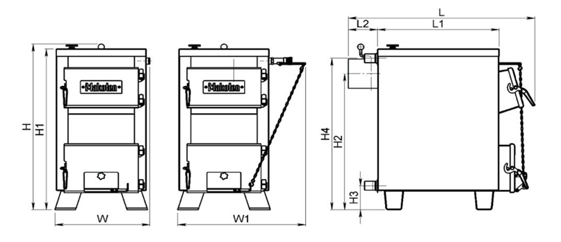
| Висота(H) | мм | 890 | 890 | 905 |
| Ширина(W) | мм | 460 | 460 | 460 |
| Довжина (глубина)(L) | мм | 795 | 905 | 1055 |
| Вага котла без води | кг | 113 | 130 | 161 |








